Это объявление уже закрыто

SF-1-190-237

Продам 5-комнатную квартиру

Местоположение: Харьков, Прилегающие к центру, Левада, Аэрокосмический пр., 46
5 Комнат
109 м2
7/9 этаж
Цена
95 000 $

Информация

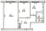
Квартира 5 комнат м Гагарина 109 кв.м с частичным добротным ремонтом (3 комнаты и гардероб). Две соседние квартиры 3+2 + тамбур за капитальной бронированной дверью. 2 санузла 2 кухни с возможностью расширения. . Спокойный зеленый двор автостоянка хорошие соседи чистый подъезд (со свежим ремонтом).

95 000 $ стоимость объекта
872 $ цена за м2
109 м2
5 комнат
7 Этаж
9 Этажность

Дополнительная информация

Дата обновления информации: 31.01.2020 09:32;